Outdoor Sunscreen - Small Spaces 65mm - Winch or Motor - Made in Italy by Centanni
SUNSCREEN COMPLETE WITH MANEUVERING MECHANISM EXCLUDING VELETTE
The
C65 Centanni sunscreen is a model suitable for outdoor installation in small spaces, with 65mm curved slat edged with anti-noise gasket and rigid lateral sliding guides.
This Centanni solar shading is ideal for surface mounting or overhanging. The slats can be oriented in any position with 180 ° movement with a darkening of up to 75%. In the absence of the containment niche it is possible to complete the installation with an external covering veil.
Custom-made sunscreen finishes : WHITE RAL 9016, GRAY RAL 7035, SILVER RAL 9006, GRAY RAL 9007, ANTHRACITE RAL 7016, GREEN RAL 6005.
MINIMUM AND MAXIMUM DIMENSIONS 65 MM WINCH AND MOTOR SLEDS
- Maximum width dimension: 3500 mm;
- Minimum dimension width: 500 mm / with motor L. MIN. 550 mm;
- Maximum dimension in height: 4000 mm;
- Minimum dimension in height: 500 mm;
- Maximum area: 8 square meters;
- Minimum winch niche width: 120 mm.
NOTES: The terylene is gray for all the Sunscreen models.
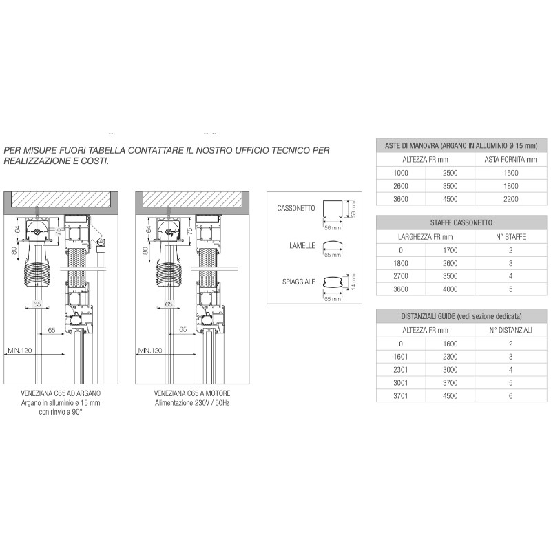
FOR MEASUREMENTS OUTSIDE THE TABLE, PLEASE CONTACT OUR TECHNICAL DEPARTMENT.

HOW TO TAKE THE MEASUREMENTS OF THE SUNSCREEN?
Sunblind measuring system : we report the following measuring system in order to avoid misunderstandings when ordering:
- LIGHT SIZE IN WIDTH = wall-to-wall measurement. Consider the smaller size if the walls are not perfectly square.
- In HEIGHT, consider the higher measure instead.
- Indicate if the sunshade will be mounted with recessed guides.
The measures communicated must be expressed in mm.
- Mounting inside the wall shoulder L x H x S (see FIG. 1)
- Assembly with concealed box in niche W x H + packaging (P) x S (see FIG. 2)
- Cantilever mounting L + (50mm + 50mm minimum) x H + packing (P) (see FIG. 3)
Tailor-made outdoor sunshades: online prices and offers
The outdoor sunscreens are practical and functional.
The
all-Italian Centanni production gives a further guarantee of high reliability.